

























































Brooky
Entire home in Winter Park, Colorado
- 16+ Sleeps
- 9 Bedroom
- 7 Bath
The Experience
Luxurious 8000 sq. ft home with 9 Bedrooms, 7 Bathrooms and amazing resort views! Custom gourmet kitchen, 5 king bedrooms, 3 queen bedrooms, bunk area with 6 queen beds, sleeps 15+. Corner lot with lots of space for outdoor activities. Three car heated garage, two living areas, 2 kitchens and a huge game area with a pool table and bar. Everything you need for a perfect mountain getaway!
Please check on dates, even if booked. We have 11 other homes in the same neighborhood!
The Home
Please check all house rules to avoid penalties.
Nightly minimums may apply.
This beautiful home sits on a corner lot with views of the mountains right out of the window. Enjoy the breathtaking scenery while grilling up a family meal on the back patio or soaking in your private hot tub. We are just minutes away from world class downhill skiing, cross country skiing, snowmobiling, as well as the Fraser tubing hills. Summer activities offer hiking, mountain biking, rafting, golf, fishing, boating, as well as activities at the base of Winter Park Ski resort.
Entertainment: The home has all the entertainment amenities that you want. Both living areas feature High-Definition TVs with an HD satellite TV. Flat Screen TVs in all rooms, Xbox one, 2 fireplaces, pool table and hot tub. Something for everyone to enjoy! High speed internet (Xfinity) is of course a must!
The Layout
Our main level offers an open layout floorpan with Kitchen, dining, and living area all open for group gathering space. Our living room features a large sectional, 65” TV and large wood burning fireplace. Our dining room has seating for 12 with additional seating at the breakfast table and kitchen bar area’s.
In our huge gourmet kitchen you will find everything you need to cook large meals for a group with 5 burner gas range and ceiling mounted hood vent. Large fridge/freezer, double basin sink, oven/microwave and an attached pantry with a large freezer. Kitchen is stocked with a coffee maker (Keurig and standard – coffee not supplied), cookware, bakeware, dishes, glasses, utensils and small appliances (griddle, crock pot, blender, food processor, rice cooker and waffle maker). Creating a huge meal like a Thanksgiving meal with all the fixings is not a problem at our home!
Off of our living room and breakfast areas you will find 2 large patio spaces perfect for taking in the Winter Park Resort ski hill views! On the patios you will find a grill, dining set for 5, and an outdoor couch.
On our main level you will also find our Master King suite with large master attached bathroom (2) and 2 walk in closets. The bathroom has a large stand-up shower with bench, large soaking tub, double vanity, make-up area and toilet.
Pullout sofa is located in this room.
The second bedroom on this level is also a King suite with Tv and attached bathroom (1). Bathroom has a large stand-up shower with bench, single vanity and toilet.
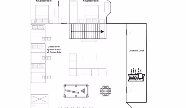
Entering our basement level you will find a HUGE Living/Game Room area. Our living space offers a large: U-shaped sectional that seats 7, electric fireplace, a 65”’ Roku TV and Xbox One. The game area includes a pool table, a foosball table, and a full bar with 7 bar stools for seating, fridge/freezer, microwave, coffee maker and sink. This room is also where our built in bunks are and offer 3 sets of queen over queen bunks (6 queen beds total)! Step outside our game room doors and soak in our private hot tub!
Down the hall you will find our second kitchen and dining area with full size Refrigerator/Freezer, microwave, electric cooktop with hood vent, dishwasher, coffee maker and toaster. (no oven)
This floor also offers 4 additional bedrooms as noted below-
-Queen size bed with shared bathroom in bunk area.
-King size bedroom with TV with attached shared hall bath.
-King size bedroom with TV, attached bathroom and walk in closet. The bathroom has a stand-up shower with bench, single vanity and toilet.
-King size bedroom with TV with shared hall bath.
Our upstairs level offers 2 queen bedrooms each with en-suite full bathrooms. Each bedroom also offers a smart TV.
All Winter Park House properties come stocked with a basic starter package of paper towels, toilet paper, hand/body soap, conditioning shampoo, dish soap, sponge and dishwasher detergent (this is a 3–4-night supply, guests may purchase additional products locally). Each home is equipped with high-end bed linens and towels.
Get ready to make some wonderful memories here in Winter Park and at our beautiful mountain home!
Amenities
Kitchen & Dining
- Microwave
- Fridge/Freezer
- Cooking Basics
- Dishes and Silverware
- Dishwasher
- Stove
- Coffee Maker
Throughout The Home
- Gas Grill
- Private outdoor Hot tub
- Private Patio or Balcony
- Outdoor Furniture
- Private Enterance
The Fun Stuff
- TV with Roku, Standard Cable
- Pool Table
- Game Console
- High Speed WIFI
The Not So Fun Stuff That Actually Matters
- Washer and Dryer
- Heated 3 car garage
Nightly Minimums
(shorter times are considered as we get closer to the dates)
During times not listed below: 2-night minimum, but 1 night stay can be considered if it is midweek or next to another booking.
New Years (first week of Jan): 5 nights
Ski Season (Early Jan – Late Feb): 4 nights
MLK Weekend: 5 nights
Presidents Weekend: 5 nights
Spring Break: (Late Feb / March): 5 nights
Early April (First 2 weeks): 3 nights
Late April: 2 nights
May: 2 nights
Memorial Weekend: 4 nights
Summer (June – Mid- August): 5 nights
Labor Day Weekend: 4 nights
Fall (Late August – Sept): 3 nights
Late Fall (Oct- Thanksgiving): 2 nights
Thanksgiving: 5 nights
Early Ski Season (Late Nov-Mid Dec): 3 nights
Christmas & New Years: 5 nights